物件価格
月々のお支払い例
1,659.77円
※金利1.20% 借入金額:物件価格、借入期間35年
物件の特徴
主な設備
公営水道
トイレ2箇所
和室
主な特徴
南向
前道6m以上
南側道路面す
閑静な住宅街
通風良好
陽当り良好
2階建
即入居可
物件概要
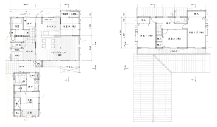
| 価格 | 3,100万円 | 間取り | 5LDK |
|---|---|---|---|
| 物件種別 | 中古一戸建て | ||
| 所在地 | 長野県長野市篠ノ井布施五明 | ||
| アクセス | JR信越本線『篠ノ井』 徒歩20分 (約1600m) JR篠ノ井線『篠ノ井』 徒歩20分 (約1600m) しなの鉄道『篠ノ井』 徒歩20分 (約1600m) |
||
| 建物面積 | 公139.28㎡ | 駐車場 | なし |
| 築年月 | 2007年(平成19年)03月築 | ||
| 建物構造 | 木造 2階建 | 工法 | |
| 主要採光 | 南向 | バルコニー | |
| 保証・評価 | |||
| リフォーム | |||
| 土地面積 | 公253.15㎡(76.57坪) | 接道 | 南側幅 約6.0m |
| 私道 | セットバック | 無 | |
| 地目 | 宅地 | 地勢 | 平坦 |
| 権利 | 所有権 |
||
| 都市計画 | 市街化区域 |
用途地域 | 1種低層 |
| 建ぺい/容積率 | 50% / 100% | 土地国土法 | |
| 許可番号 | 建築基準法 | ||
| 法令制限 | |||
| 小学区 | 篠ノ井西小学校 徒歩21分 (約1629m) | 中学区 | 篠ノ井西中学校 徒歩15分 (約1198m) |
| 現況 | 空 | 引渡 | 即 |
| その他費用 | |||
| 周辺環境 | A・コープ ファーマーズ 篠ノ井店 徒歩5分 (約370m) 篠ノ井西中学校 徒歩14分 (約1050m) 篠ノ井駅 徒歩19分 (約1450m) 篠ノ井西小学校 徒歩22分 (約1720m) 八十二長野銀行篠ノ井支店 徒歩26分 (約2030m) 御幣川遊園地 徒歩31分 (約2460m) クスリのアオキ 篠ノ井店 徒歩33分 (約2620m) 長野俊英高等学校 徒歩37分 (約2910m) デリシア 篠ノ井店 徒歩36分 (約2810m) 今井駅 徒歩36分 (約2880m) |
||
| 備考 | バルコニー:9m 主要採光面:南向き |
||
| 物件番号 | 4635103 | 取引態様 | 媒介 |










